釣魚島美食廣場餐飲裝修工程
| 項目名稱 | 釣魚島美食廣場餐飲裝修工程 | 行業屬性 | 酒店/餐飲/會所 |
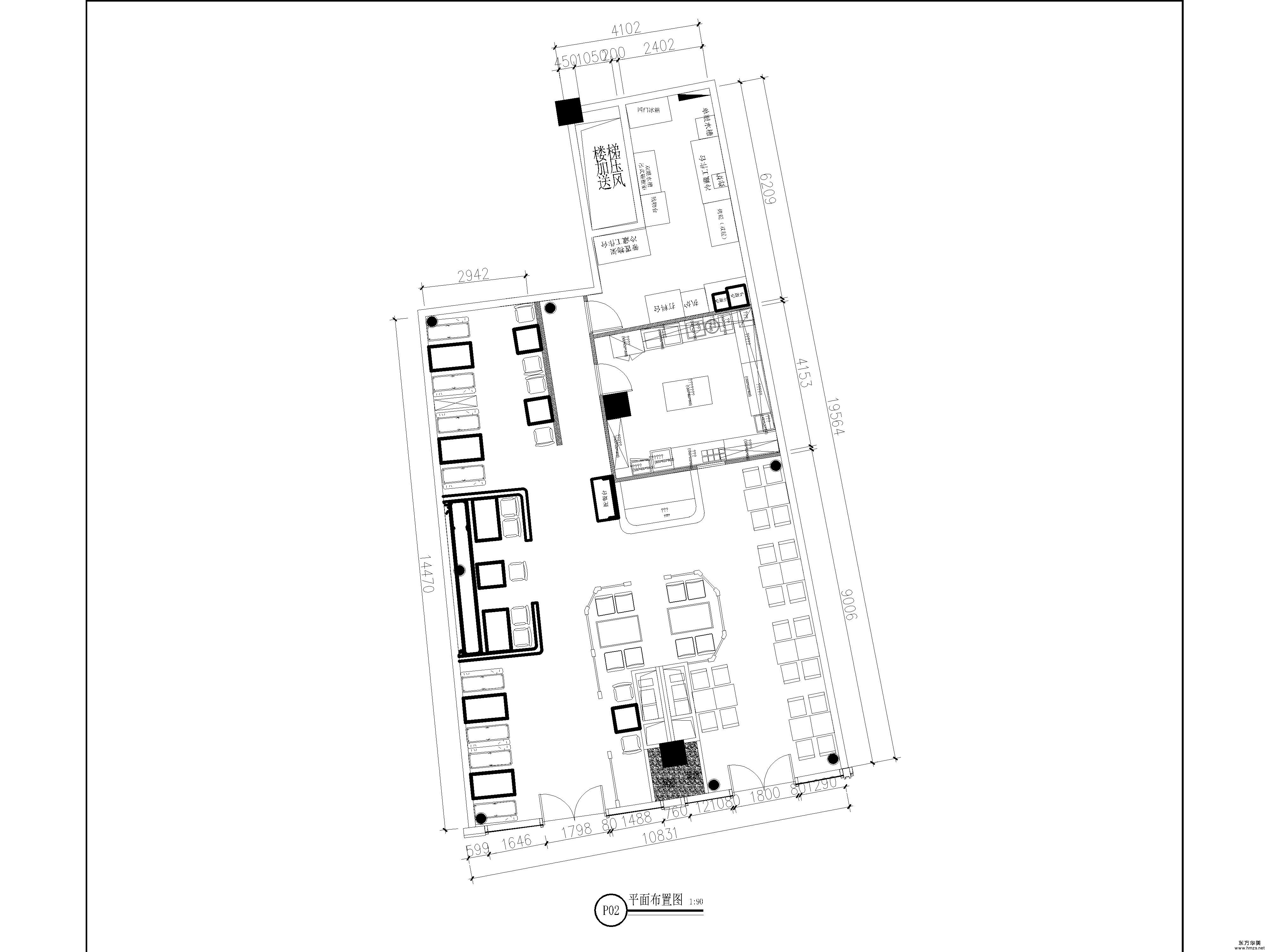
| 項目地址 | 長沙市開福區萬家麗路北(近月湖大市場) | 項目造價 | 28.60萬 |
| 主關鍵詞 |
▄原建筑結構分析: 突破傳統意義上裝飾手法,大膽創意,從空間布局,動線走向,色彩上都作了精心的布局運用自然的材料。計師采用木質的舒適座椅,與整個空間相搭配,墻面使用簡約色彩的白墻和局部彩色裝飾,符合整個空間的主題,同時調動了人們的用餐情緒。
▄設計需求: 給客人帶來享受美味的驚喜,給他們一個舒服的用餐環境,餐廳外表的讓食客稱奇。以時尚的餐廳風格為主,再搭配一些復古風格,進一步提升餐廳的高檔和品味,同時加上一些現代簡約風格。獵奇的心理促使食客靠近,品嘗之后感悟,感覺這家餐廳的環境也可如此的與眾不同。
▄設計風格定位: 時尚餐廳,結合現代及復古風格。復古風味的裝修風格給人一種沉穩典雅的感覺,總是能散發出一種獨特的空間魅力;柔和空間的線條、氣氛的裝修方式,是現代時尚裝修常用的一種裝修手法,現代時尚給人一種輕快有活力的感覺。通過將這兩種裝修風格融合在一起就呈現出了現在這種裝修效果,將復古與時尚完美的融合在一起。


北京鑄誠大廈辦公裝修工程
北京銀河SOHO辦公裝修工程
301醫院裝修工程
